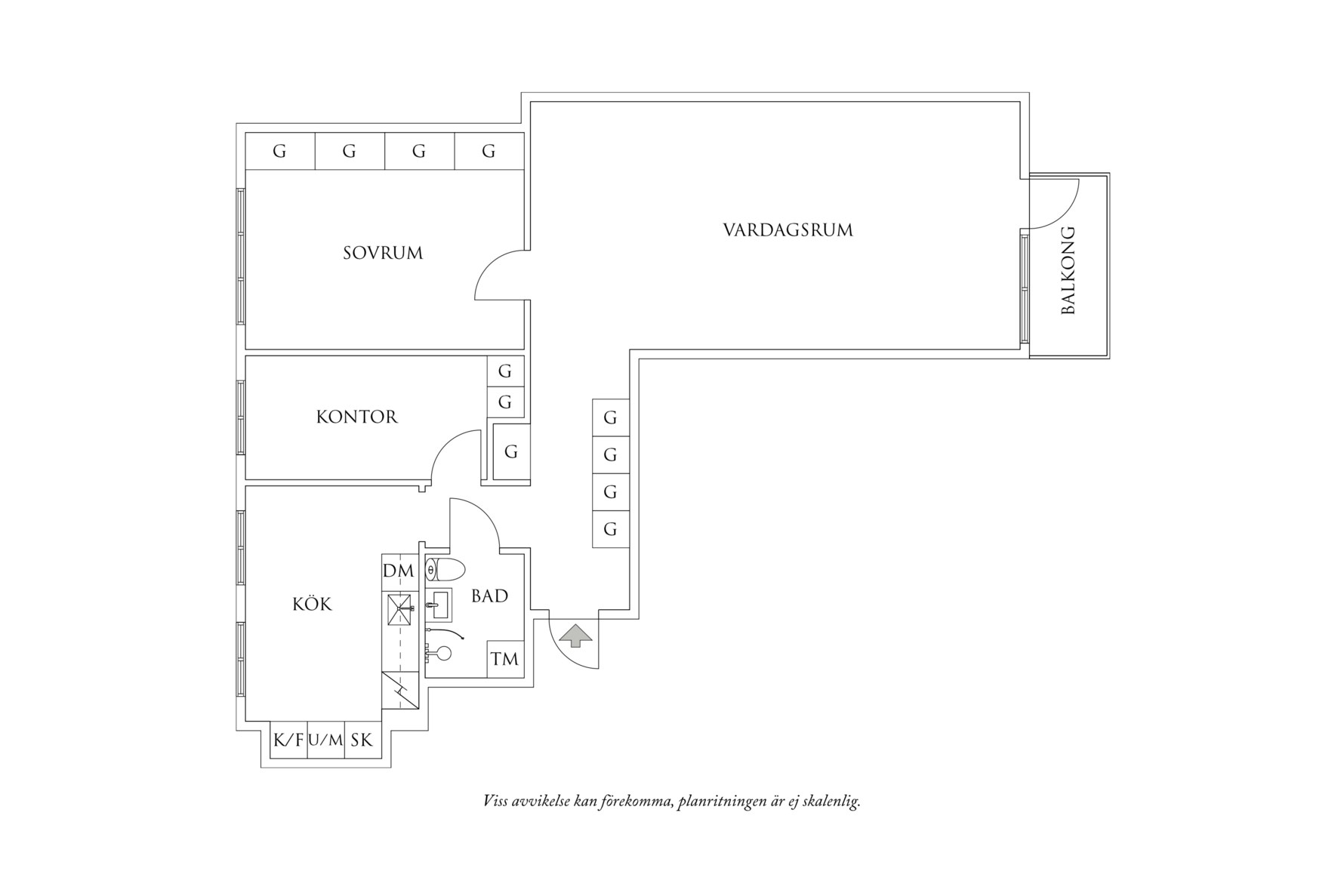
Bostaden disponeras enligt följande:
Innanför ytterdörren välkomnas ni av en hall med bra förvaringsmöjligheter. Med parkettgolv och grå/beiga väggar skapas ett fräscht intryck.
Vidare in till vänster kommer ni in i det ljusa köket med stora fönster mot den grönskande baksidan. Här finns det plats för matbord och stolar. Parkettgolv, vitmålade väggar och skåpsluckor, stänkskydd i vitt kakel och en stenliknande bänkskiva i mörk laminat skapar ett modernt och tilltalande kök. Köket är utrustat med induktionshäll, fläkt, inbyggd mikro och ugn från Siemens, kombinerade kyl med frys samt diskmaskin. Både kyl/frys och diskmaskin är integrerade. Köket renoverades år 2015 och är från Ikea.
Bostadens vardagsrum bjuder på otroligt ljusinsläpp tack vare de stora fönsterna och balkongdörren som leder ut till den soliga och mysiga balkongen med utsikt över Chalmers. Rummet rymmer både soffgrupp och ett större matbord om så önskas, och den fina fungerande öppna spisen förgyller lägenheten under vinterhalvårets kalla dagar.
Två sovrum som vetter mot fastighetens lummiga och tysta bakgård. Det större sovrummet har en stor garderobsvägg som rymmer mycket förvaring, fint parkettgolv och väggar målade i en duvblå nyans. Det något mindre sovrummet har garderobsförvaring, grå/beiga väggar och samma parkettgolv som resterande rum.
Helkaklat badrum med vitt kakel på väggarna och mörkgrått golvkakel med golvvärme. Badrummet renoverades 2018 och har tvättmaskin, wc från Ido, handfatskommod och spegelskåp från Svedbergs, handdukstork samt duschhörna med en vikbar vägg i glas.

