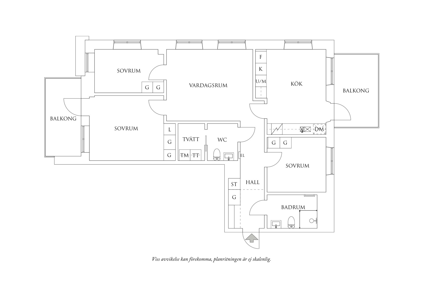
Bostaden disponeras enligt följande:
Innanför ytterdörren möts ni av en välkomnande hall med praktiskt klinkergolv och målade väggar i ljusgult. Här finner ni goda förvaringsmöjligheter i form utav plats för avhängning samt tre garderober.
Vidare kommer ni in i bostadens hemtrevliga vardagsrum där två stora fönsterpartier bidrar till fantastiskt ljusinsläpp. Här smyckas golven av fin ekparkett som gör sig fint mot väggarna som är målade i en ljusgul nyans. Här ryms stor soffgrupp och tv-bänk.
Från vardagsrummet tar ni er in i två av bostadens sovrum. Det större sovrummet rymmer plats för dubbelsäng, nattduksbord på vardera sida samt annan valfri möblering. Ni finner även tre garderober. Från detta rum tar ni er ut på bostadens ena balkong där matgrupp ryms och där ni kan njuta av vacker utsikt. Den andra sovrummet bjuder på härligt ljusinsläpp tack vare fönsterpartier i olika väderstreck. I detta rum ryms säng och annan valfri möblering och ni finner även två garderober vilket skapar goda förvaringsmöjligheter. Bostadens tredje sovrum finner ni i bostadens andra ände, där ryms plats för enkelsäng och annan möblering eller dubbelsäng. Två garderober skapar bra förvaring.
Bostadens kök är stilrent och mysigt. I mitten av rummet finns plats för matbord och stolar. Köksluckorna i en mörkgrön nyans gör sig fint mot bänkskivorna och stänkskydden i ljusgrå komposit och köksluckornas svarta beslag. På golvet ligget fin ekparkett och väggarna är målade i ljusgrått. Köket kommer ifrån Marbodal och samtliga vitvaror är från Electrolux och utgörs av induktionshäll, fläkt, inbyggnadsugn, inbyggnadsmikro, integrerad diskmaskin samt kyl och frys i fullhöjd. Från köket når ni bostadens andra fantastiska balkong. Balkongen ligger i eftertraktat sydvästläge och kan inredas med en mindre loungegrupp.
Stilfullt badrum med klinker i en gråmelerad färg och vitt kakel på väggarna. Inredningen består av wc, handfatskommod, spegelskåp med belysning, handdukstork samt dusch med glasväggar. I taket sitter infällda spotlights och badrummet har även underliggande behaglig golvvärme.
Bostaden erbjuder dessutom en gäst-wc varav ni når tvättstugan ifrån. På golvet ligger samma klinker i som i det stora badrummet och väggarna är målade i vitt. Inredningen består av wc, handfatskommod samt spegel med belysning. Från badrummet når ni som sagt lägenhetens tvättstuga med tvättmaskin och torktumlare från Electrolux, ovanliggande bänkskiva samt överskåp som hjälper till med förvaringen och underlättar vardagssysslorna.

