Välkommen till

Doktor Allards gata 12

Doktor Allards gata 12
3:a (Möjlig 4:a) Guldheden

Ljus & toppmodern bostad högt upp i huset med milsvid utsikt

Högt uppe på toppen av Guldheden med makalösa vyer väntar denna smakfulla 3:a med allt man kan tänka sig! Här finner ni två balkonger, exklusivt kök från Vedum samt social och öppen planlösning. Det höga och fria läget gör att ni har fantastisk utsikt över stadens takåsar, grönskande natur och himmel. Genomgående ljusa ytskikt, generöst ljusinsläpp från flertalet fönsterpartier och goda förvaringsmöjligheter. Det är även möjligt att göra om lägenheten till en 4:a med tre sovrum. Välskött förening och utanför porten har ni alla bekvämligheter inom gångavstånd och kommunikationer som enkelt tar er runt stan.

Läs hela beskrivningen
Johan
ansvarig mäklare
Johan Gille
Fastighetsmäklare & Senior Partner
0704-55 22 70 johan.gille@lundin.se
Lundin Innerstaden

Med oss får du en lokal, heltäckande och modern mäklartjänst med stort personligt engagemang. Läs mer här.

Johan
ansvarig mäklare
Johan Gille
Fastighetsmäklare & Senior Partner
0704-55 22 70 johan.gille@lundin.se
Lundin Innerstaden

Med oss får du en lokal, heltäckande och modern mäklartjänst med stort personligt engagemang. Läs mer här.

Bilder

Planritning

Beskrivning

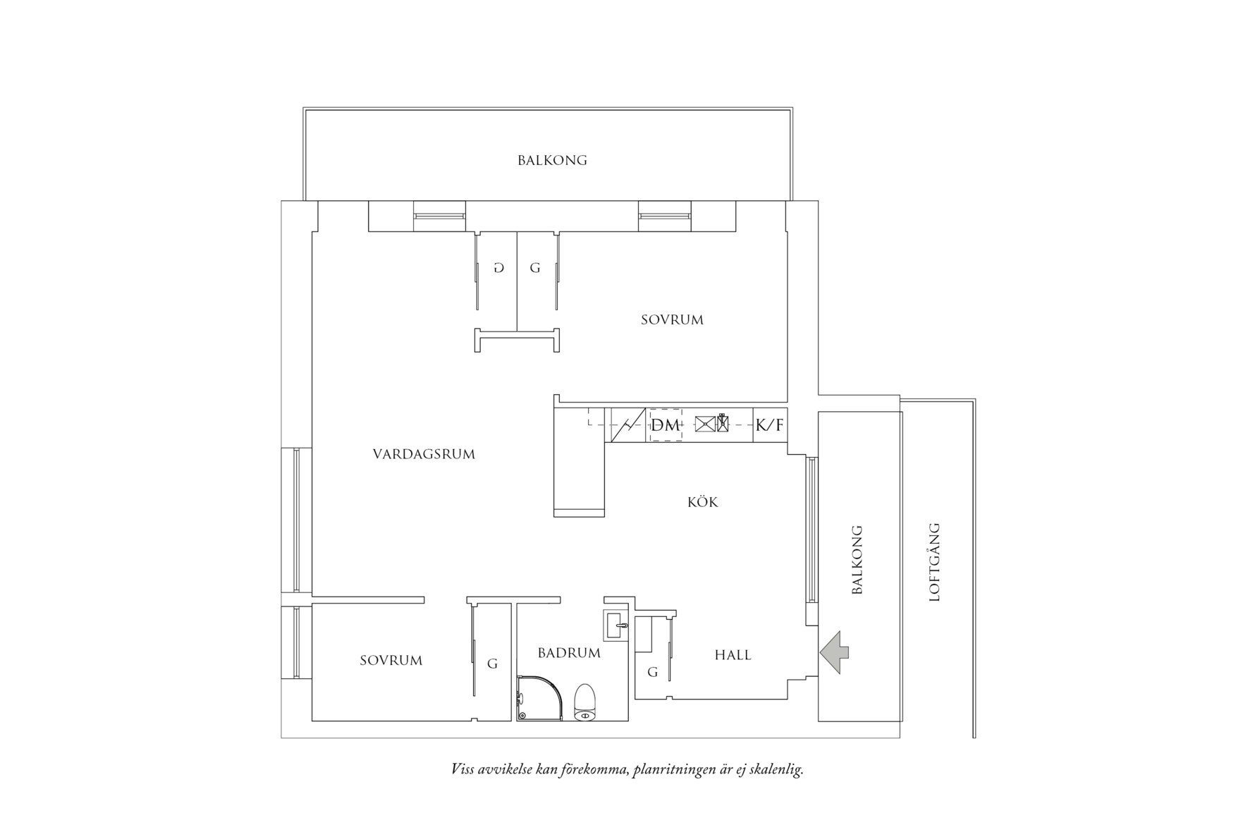
Bostaden disponeras enligt följande:

Vid ytterdörren finner ni den trevliga entrébalkongen. Här ute kan ni möblera med lounge-möblemang och avnjuta kaffekoppen med utsikt över staden. Innanför dörren kliver ni in i en ljus hall och möts av detaljer till vänster i form av panel i ek. Rakt fram finner ni förvaring i en skjutdörrsgarderob. Genomgående fint ekparkettgolv och vitmålade väggar.

Modernt kök från Vedum med svart inredning och ljus bänkskiva med ovanliggande stänkskydd i vitt kakel. Här finner ni inte bara snygga detaljer och finesser utan också goda förvaringsmöjligheter i såväl skåp som lådor. Den öppna delen mot vardagsrummet skapar ett socialt kök och en plats att hänga vid. Intill det stora fönsterpartiet finns en given plats för matbord och trevliga middagar. Den maskinella utrustningen består av inbyggd fläkt, induktionshäll, integrerad diskmaskin, kombinerad kyl och frys. Inbyggd varmluftsugn med mikro från Siemens som går att koppla upp via Wifi med inbyggda funktioner för matlagning och temperaturstyrning.

Öppet och inbjudande vardagsrum med mycket rymd och ljusinsläpp från flera håll. Här erbjuds goda möbleringsalternativ med plats för soffgrupp, tv-bänk, byrå, fåtölj samt övrigt möblemang. Det går enkelt att skärma av delen intill balkongen och göra det till ett extra sovrum. Från vardagsrummet har ni direkt utgång till ännu en ljuvliga balkongen med slående utsikt. Där ute får ni plats med trevliga utemöbler för sommarens varma kvällar.

Från vardagsrummet når ni bostadens två sovrum. Master bedroom ligger avskilt bakom köket och har plats för dubbelsäng och sidobord. En stor skjutdörrsgarderob bidrar till förvaring. Ni har även här inne direkt utgång till den stora balkongen.

Det andra sovrummet, idag inrett som sovrum, går utmärkt att inreda som kontor eller gästrum. En säng och skrivbord från plats. I en skjutdörrsgarderob erbjuds extra förvaring.

Helkaklat badrum med mörkgrått klinkergolv och vitt kakel på väggarna. Bakom duschväggen är det svart mosaik som blir en snygg detalj. Inredningen består av wc, handfatskommod, duschhörna med vikbara dörrar, väggskåp samt spegelskåp. Infällda spotlights för extra komfort.

Beskrivning planlösning
Ekonomi
Bostad
Förening
Området
Guldheden
Guldheden är en trivsam stadsdel belägen på Göteborgs södra höjder med en byggnadsstil inspirerad av funktionalismen och folkhemstanken.

Guldheden har två vattentorn. Uppifrån det södra får man en hänförande utsikt över staden samt möjlighet till en fika i kaféet. Det norra rymmer idag studentbostäder. Sahlgrenska sjukhuset sätter prägel på stadsdelen, många är de doktorer och systrar som fått ge namn åt Guldhedens gator.

Göteborgs city nås lätt med cykel, buss eller spårvagn. Här finns stadens stora utbud av butiker, restauranger och nöjesställen. I de egna kvarteren finns dock det mesta man behöver, vid Doktor Fries torg finns bl.a. mataffär, bibliotek, tandläkare och apotek.

Guldheden är en populär stadsdel för studenter och för barnfamiljen finns gott om skolor att välja mellan. Det finns också många föreningar inom idrott, kultur och friluftsliv som erbjuder aktiviteter för alla åldrar. Träningsställen finns vid Mossens idrottsplats och Landala torg.

Trots Guldhedens täta bebyggelse, upplevs stadsdelen som mycket grön. Bostadshusen är inbäddade i lummig grönska och gårdarna mynnar ofta ut i små grönområden med gång- och cykelvägar. Vid Guldhedstorget på Norra Guldheden ligger Olssons trädgård. Änggårdskolonin, Botaniska trädgården och Slottsskogen är fler gröna oaser i närheten.

Guldheden inbjuder till ett centralt boende i en av Göteborgs charmigaste stadsdelar.
Här finns alla förutsättningar att trivas!
Karta
Kartan laddas