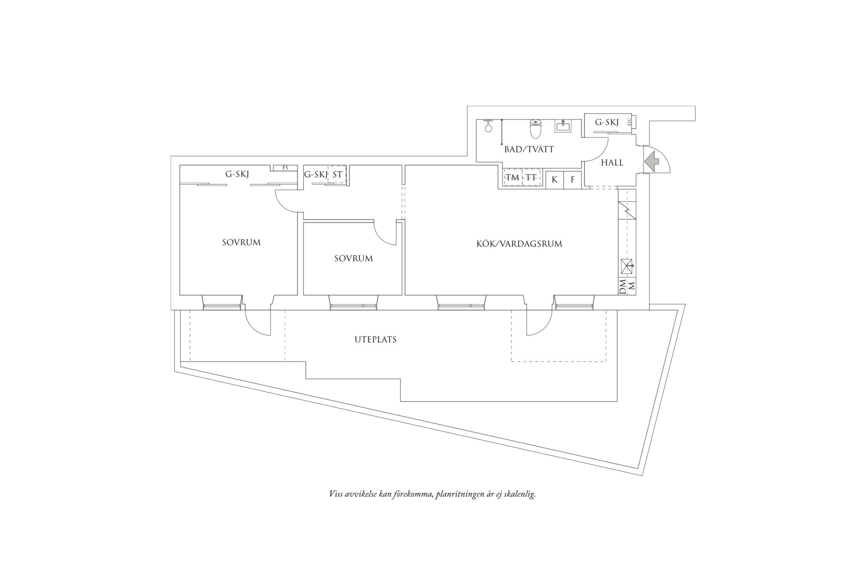
Hall
Ljus hall med betonggolv som ger ett modernt och stilrent intryck. Härifrån når man smidigt bostadens övriga rum. Gott om förvaring i form av inbyggda garderober.
Kök
Köket är från Marbodal. Det är utrustat med stilrena materialval såsom laminatbänkskiva och stänkskydd i kakel. Här finns allt du behöver: spishäll (Siemens, induktion, 2021), fläkt från Franke Pandora (2021), inbyggd mikrovågsugn (Siemens, 2021), kyl/frys (Siemens, integrerad, 2021) samt diskmaskin (Siemens, integrerad, 2021). Köket erbjuder gott om förvaring och arbetsyta, och blir snabbt en naturlig samlingsplats i hemmet.
Vardagsrum
Rymligt vardagsrum med generös takhöjd! Planlösningen är öppen och social, med utgång till den stora altanen vilket skapar en fin koppling mellan inne och ute. Här får du plats med både soffgrupp och matbord för sociala tillställningar.
Sovrum 1
Sovrum med egen utgång för altanen, Rummet är lugnt beläget och erbjuder goda förvaringsmöjligheter.
Sovrum 2
Betonggolv och målade väggar. Rummet är ljust och flexibelt – perfekt som barnrum, gästrum eller kontor.
Badrum/WC 1
Vitt kakel och modern duschlösning. Utfört av fackman. Utrustat med golvvärme, tvättmaskin och torktumlare från Siemens (2021). Praktisk och funktionell inredning.
Altan
Bostadens pärla är utan tvekan den stora altanen som nås från vardagsrummet. Här får du plats för både loungegrupp och matmöbler – perfekt för långa sommarkvällar. Söderläge och gott om solljus hela dagen.
Område & Övrigt
Förvaring: Inbyggda garderober i sovrum, hall och entré.
El: Jordfelsbrytare finns, ej nyligen renoverad.
Nära till:
Förskola/skola: ca 200 m
Matbutik: ca 600 m
Spårvagn: ca 400 m
Grönområde: ca 10 m

