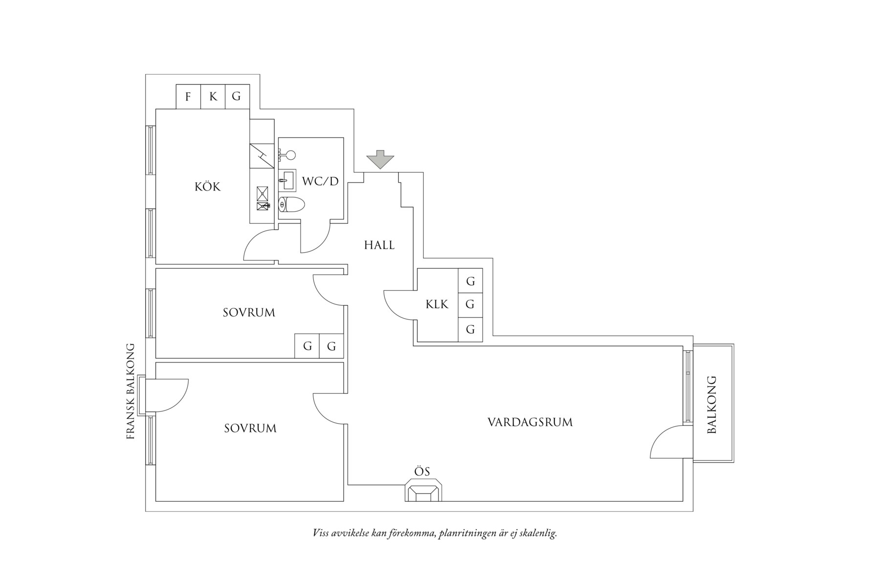
Innanför ytterdörren möts man av en möblerbar hall med plats för fri avhängning samt goda förvaringsmöjligheter i en rymlig klädkammare. Golvet kläs av ekparkett och väggarna är målade i vitt.
Välplanerat kök som renoverades 2016. Köket har köksinredning från HTH med vita handtagslösa luckor, bänkytor i mörkgrå laminat och stänkskydd i klassiskt vitt kakel. Den maskinella utrustningen utgörs av glaskeramikhäll (Husqvarna), frånluftsfläkt (Thermex), integrerad diskmaskin (Miele), inbyggnadsugn med varmluft (Husqvarna), inbyggnadsmikro (Husqvarna) samt kyl och frys i fullhöjd (Husqvarna). Samtliga vitvaror installerades i samband med renoveringen 2016. Golvet kläs av eklaminat och väggarna är målade i vitt. I köket ryms en matplats för fyra personer. Två fönsterpartier bidrar med härligt ljusinsläpp och grönskande utsikt mot husets baksida.
Det ljusa och härliga vardagsrummet är generöst tilltaget med gott om plats för både soffgrupp och matsalsbord. Golvet kläs av ekparkett och väggarna är målade i vitt. Rummet präglas av en tidstypisk öppen spis och ett generöst fönsterparti som ger rikligt med ljusinsläpp. Härifrån nås även lägenhetens balkong som har ett eftertraktat västerläge.
Lägenhetens största sovrum nås från vardagsrummet. Här finns gott om plats för en dubbelsäng med tillhörande sängbord samt garderober. Golvet kläs av eklaminat och väggarna är målade i vitt. Generöst fönsterparti med lugnt läge mot husets grönskande baksida och en fransk balkong.
Det mindre sovrummet intill har även det ett tyst läge mot den grönskande baksidan. Här kan man inreda med säng och arbetshörna. Golvet kläs av eklaminat och väggarna är målade i vitt.
Till sist erbjuder bostaden ett stilrent renoverat badrum som har ljus klinker med underliggande golvvärme och vita helkaklade väggar. Inredningen består av wc, handfatskommod, spegelskåp, handdukstork samt duschhörna med vikvägg i klarglas. I taket sitter infällda spotlights. Fackmannamässigt renoverat 2015.

