Denna bostad kommer snart ut till försäljning. Är du intresserad? Gör din intresseanmälan här så blir du kontaktad av ansvarig mäklare. Du kan även maila direkt till mäklaren på victoria.wigerud@lundin.se.
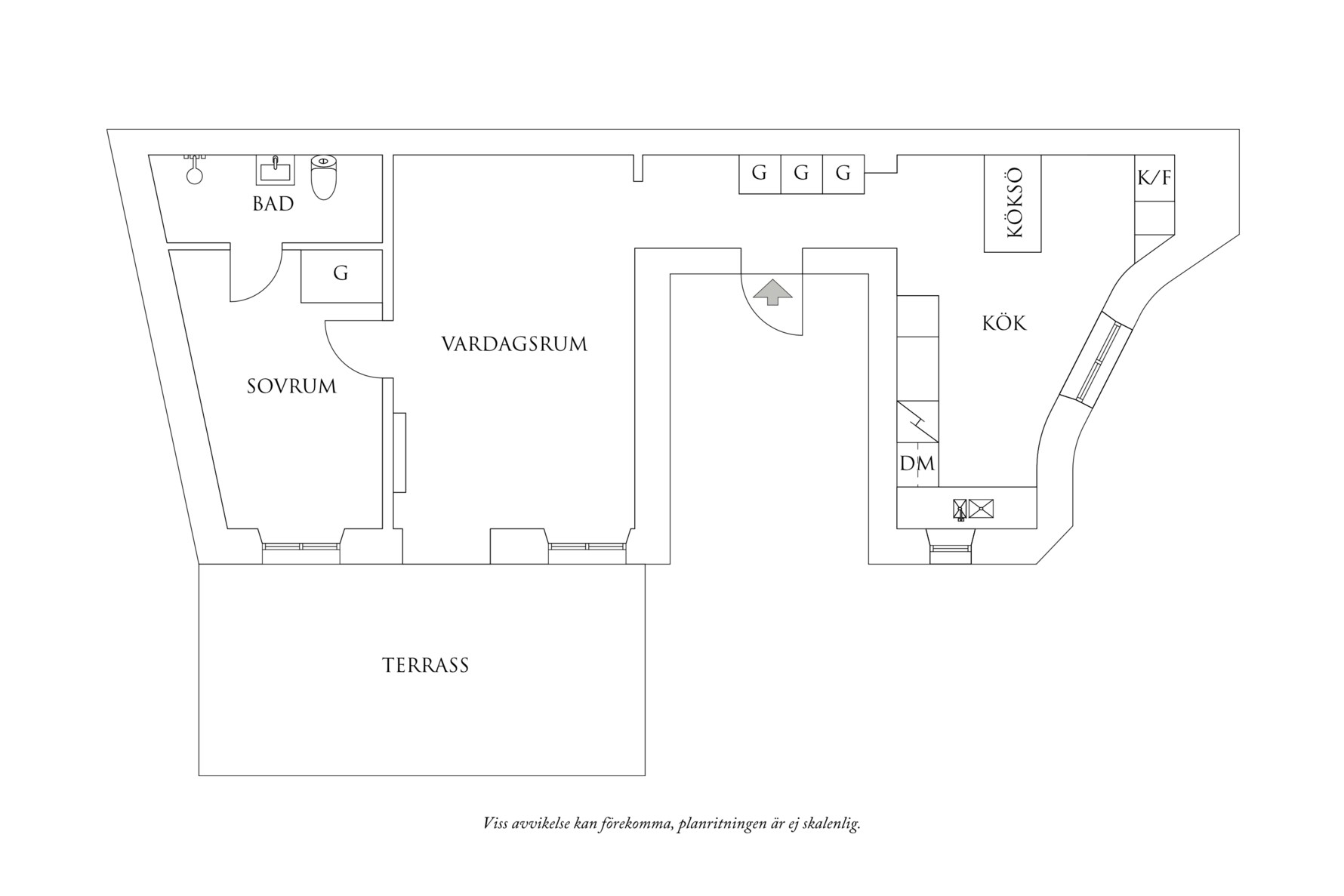
Ni välkomnas in i en ljus och rymlig entré med gott om plats för fri avhängning och förvaring i tre garderober. Här finns även utrymme för valfritt möblemang, och trägolvet tillsammans med de ljusa väggarna skapar en varm och inbjudande känsla redan vid första steget in.
Vardagsrummet är ljust, luftigt och fullt av charm med högt i tak och vackra detaljer. Här finns plats för både soffgrupp, tv-bänk och matbord, och stora fönster tillsammans med helglasade dubbeldörrar släpper in rikligt med naturligt ljus. Dörrarna leder ut till terrassen, som blir en förlängning av vardagsrummet under de varma månaderna.
Terrassen rymmer både matgrupp och loungehörna – perfekt för avkopplande stunder, middagar med familj och vänner eller bara en stilla morgonstund.
Köket är ljust och stilrent med vita skåp, kaklat stänkskydd i ljusblått och en ljus bänkskiva. Den mörka träparketten på golvet skapar en vacker kontrast mot de ljusa väggarna. Här finns all modern utrustning man kan önska sig – glaskeramikhäll, fläkt, inbyggd ugn, mikro, diskmaskin samt kyl och frys – och arbetsytorna är generösa. Den praktiska köksön med bänkskiva i ljus marmor blir snabbt hemmets naturliga samlingspunkt, perfekt för matlagning och social samvaro. Stora fönster fyller köket med härligt dagsljus.
Sovrummet är lugnt och rofyllt, med plats för dubbelsäng. Förvaring erbjuds i garderob, och det stora fönstret ger ett fint ljusinsläpp som skapar en behaglig atmosfär. Trägolvet fortsätter även här, och väggarna är målade i vitt, vilket gör rummet lätt att inreda efter egen stil.
Badrummet är elegant inrett med beige kakel på väggarna och matchande plastmatta på golvet. Här finns wc, handfatskommod, spegelskåp samt duschhörna med handdusch och vikbara glasdörrar. Fyra platsbyggda hyllor ger smart förvaring och gör badrummet både funktionellt och stilrent.

