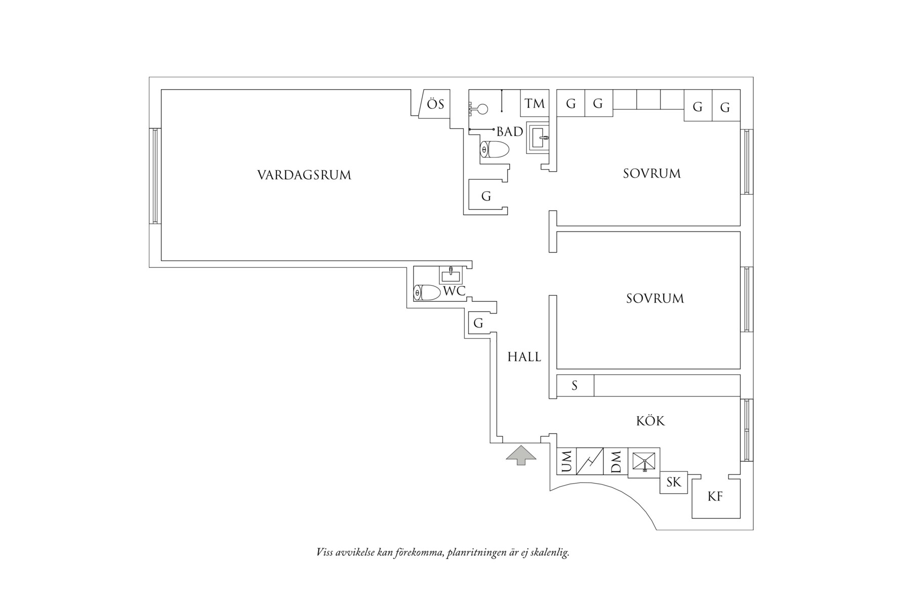
Innanför ytterdörren möts man av en hall med plats för fri avhängning samt förvaringsmöjligheter i en inbyggd garderober. Vid entrén ligger grå plastmatta i klinkerimitation som övergår i stavparkett och väggarna är målade i vitt. Lägenheten har genomgående högt i tak vilket bidrar med en känsla av rymd.
Härligt arbetskök i klassisk funkisanda! Köket som är renoverat 2019 har ljusgrå köksinredning, ljusa bänkytor i sten och stänkskydd i vitt kakel. Den maskinella utrustningen utgörs av induktionshäll, frånluftsfläkt, inbyggnadsugn med varmluftsfunktion, inbyggnadsmikro, integrerad diskmaskin samt kyl och frys. Golvet kläs av grå plastmatta i klinkerimitation och väggarna är målade i vitt. Köket erbjuder goda förvaringsmöjligheter och generösa arbetsytor. Ett dubbelfönster bidrar med ljusinsläpp och grönskande utsikt.
Underbart vardagsrum som är generöst tilltaget med gott om plats för både soffgrupp och matsalsbord. Rummet präglas av vacker fiskbensparkett, tidstypisk öppen spis samt ett generöst fönsterparti med grönskande utsikt.
Lägenhetens största sovrum har gott om plats för en dubbelsäng med smart förvaringslösning med garderober och överskåp runt om. Golvet kläs av parkett och väggarna är målade en varm gråbeige ton. Fint ljusinsläpp från ett dubbelfönster.
Det mindre sovrummet har utsikt mot härlig grönska. Här kan man inreda med säng och skrivbord eller lekhörna. Golvet kläs av parkett och väggarna är målade i en varm gråbeige ton.
Lägenhetens badrum är renoverat 2021 i naturnära färgskala med grå klinker och kakel. Inredningen består av vägghängd wc, handfatskommod från Macro Design, spegelskåp med belysning, eluppvärmd handdukstork, duschhörna med vikväggar i klarglas samt blandare med både handdusch och taksil. Här finns även en golvvärme för extra komfort och tvättmaskin med torktumlare (Samsung, 2021) som underlättar i vardagen. I taket sitter infällda spotlights.
Till sist erbjuder lägenheten även en gäst-wc som är renoverad 2021. Ljus klinker med golvvärme och ljusa halvkaklade väggar. Inredningen består av vägghängd wc, handfatskommod, eluppvärmd handdukstork, rund spegel med dold belysning bakom samt blandare och detaljer i svart. I taket sitter infällda spotlights.
Både badrummet och gäst-wc är fackmannamässigt renoverade och våtrumscertifikat finns.

