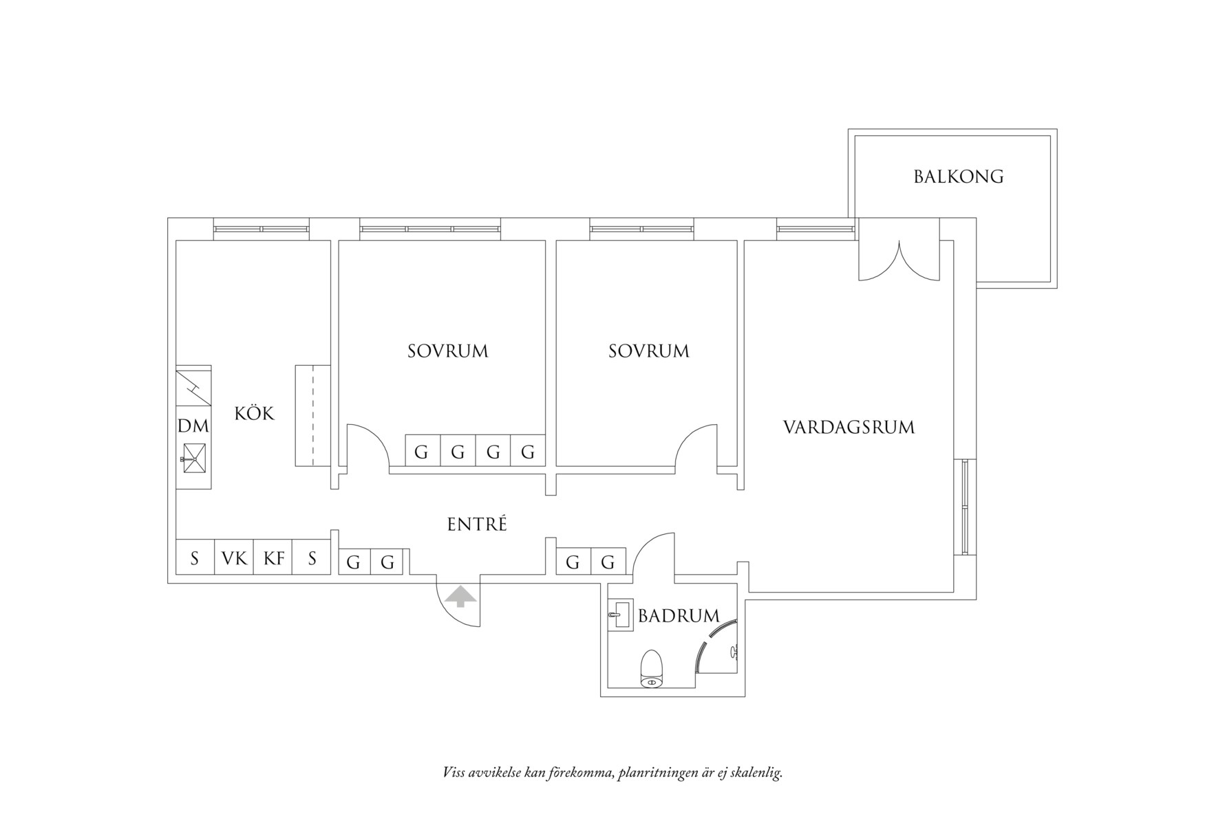
Innanför ytterdörren möts ni av en rymlig hall med plats för fri avhängning samt förvaringsmöjligheter i platsbyggda garderober. Golvet kläs av plankgolv som är hårdvaxat och betsat med valnötsfärg och väggarna är tapetserade med en ljus tapet från Midbec med diskret bladmönster. I taket sitter infällda spotlights.
Trivsamt och socialt vardagsrum i gavelläge med ljusinsläpp från generösa fönsterpartier i två väderstreck samt utgång till lägenhetens stora balkong. Balkongen ligger i eftertraktat västerläge med trevlig utsikt mot parken. Vardagsrummet kan inredas med soffa, matsalsbord samt övrig inredning. Golvet kläs av tidstypisk fiskbensparkett i original som är slipat, hårdvaxat och betsat med valnötsfärg och väggarna är målade i en greige färg.
Bostadens kök totalrenoverades 2020 och köksinredningen är inbyggd med lister av en finsnickare för en snygg finish. Köksinredningens gråa ramluckor med beslag i krom kombineras med bänkytor i ljus marmor och vitt kakel i fiskbenssättning. Den maskinella utrustningen utgörs av induktionshäll, kolfilterfläkt, inbyggd varmluftsugn, mikro, integrerad diskmaskin, integrerad kyl med frys samt en vinkyl. Samtliga vitvaror är från Ikea förutom vinkylen som är från Caso och mikron från Samsung. Golvet kläs av plankgolv som är hårdvaxat och betsat med valnötsfärg och väggarna är tapetserade i en vit diskret mönstrad tapet från Boråstapeter. Invid fönstret finns en given plats för ett mindre matbord för två personer.
Bostaden erbjuder två bra sovrum. Det största sovrummet har gott om plats för en dubbelsäng med tillhörande sängbord samt byrå. Goda förvaringsmöjligheter finns i fyra platsbyggda garderober. Ett generöst fönsterparti bidrar med behagligt ljusflöde. Golvet kläs av tidstypisk fiskbensparkett i original som är slipat, hårdvaxat och betsat med valnötsfärg och väggarna är målade i Jotuns ljusgråa färg ”sommarsnö”.
I det andra sovrummet ryms en enkelsäng och en arbetshörna för den som önskar. Golvet kläs av plankgolv som är hårdvaxat och betsat med valnötsfärg och väggarna är målade i Jotuns ljusgråa färg ”sommarsnö”. Fint ljusinsläpp från ett fönster i insynsskyddat läge med grönska utanför.
Helkaklat badrum med terracottafärgat klinkergolv med underliggande behaglig golvvärme och vitt kakel på väggarna. Inredningen består av wc, handfatskommod och spegelskåp med belysning från Svedbergs, duschhörna med rundade vikväggar i klarglas samt nya blandare från Tapwell och handdukstork. Det är även förberett för att installera tvättmaskin. I taket sitter infällda spotlights.
Under 2020 totalrenoverades samtliga ytskikt grundligt. Det sattes in nya golv- och taklister samt nya eluttag och spotlights med Plejd-funktion.

