Denna bostad kommer snart ut till försäljning. Är du intresserad? Gör din intresseanmälan här så blir du kontaktad av ansvarig mäklare. Du kan även maila direkt till mäklaren på david.soderholm@lundin.se.
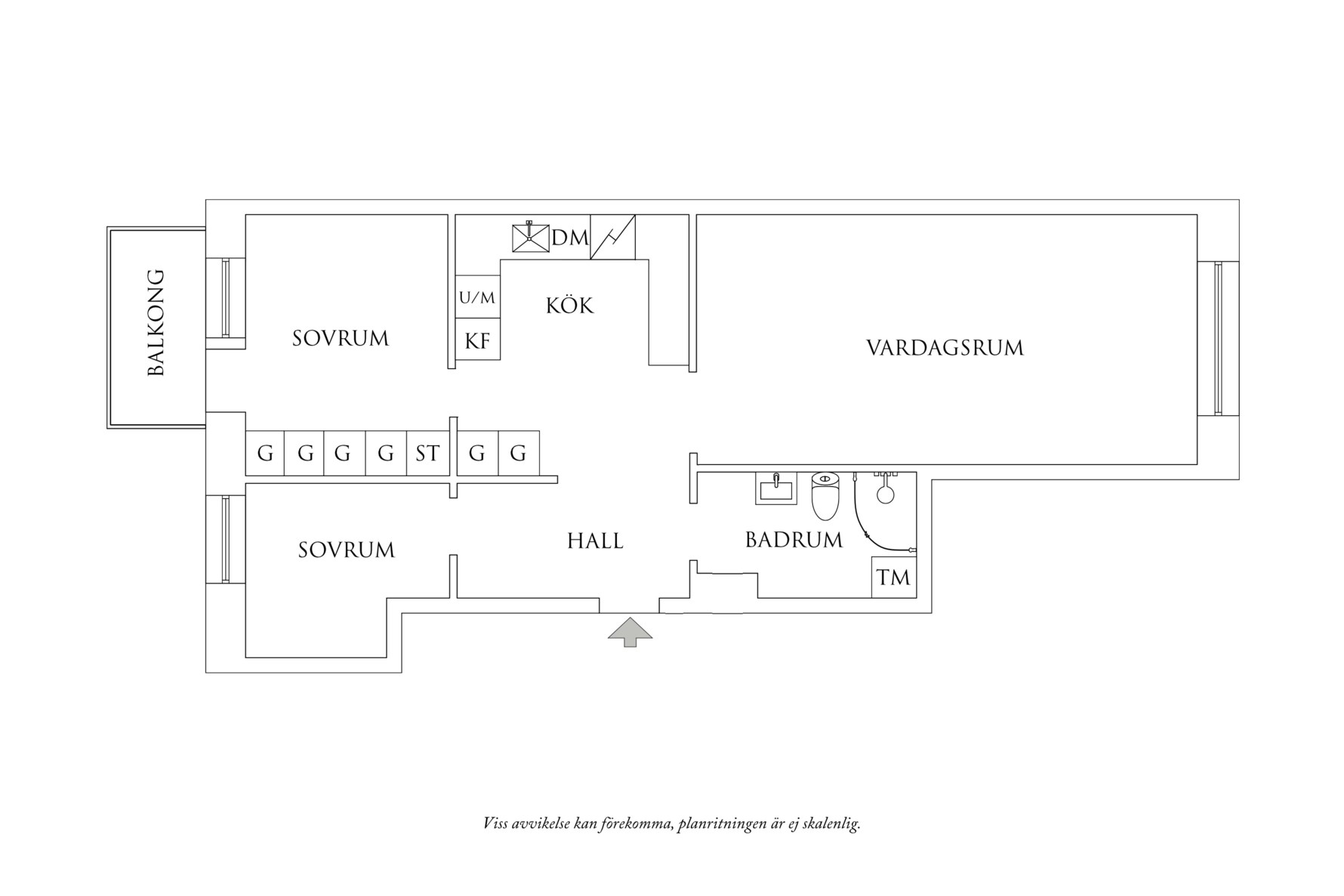
Innanför ytterdörren möts ni av en hall med öppet samband mot köket. Golvet kläs av svart klinker som löper vidare in i köket och väggarna är målade i vitt. I hallen finns plats för fri avhängning samt förvaringsmöjligheter i två garderober.
Trivsamt U-format kök med bra arbetsytor och gott om förvaring. Köket som renoverades 2015 har köksinredning i vitt från Ikea med belysta vitrinskåp som kombineras med bänkytor i svart sten och vitt kakel. Den maskinella utrustningen utgörs av induktionshäll (Siemens, 2018), kolfilterfläkt (Franke, 2015), inbyggnadsugn med varmluft (Whirlpool, 2015), inbyggnadsmikro (Whirlpool, 2015), integrerad diskmaskin (Ikea, 2024) samt integrerad kyl med frys (Ikea, 2015). Den stora öppningen mellan köket och vardagsrummet bidrar till en ljus och luftig känsla.
Underbart vardagsrum med generösa ytor som präglas av vacker fiskbensparkett och fina fönsterpartier i västerläge. Fönstren har markis vilket ger möjlighet till avskärmning från solen. De stora ytorna inbjuder till flera olika möbleringsalternativ och plats för många gäster.
Bostaden har två sovrum som båda är belägna med fönster i öster mot den lugna innergården. Golven kläs av parkett och väggarna är målade i ljusgrått. Det största sovrummet kan inredas med dubbelsäng och erbjuder goda förvaringsmöjligheter i fyra garderober samt ett städskåp. Det mindre sovrummet passar perfekt som gästrum eller kontor.
Från det största sovrummet nås bostadens rofyllda balkong som har ett högt läge mot innergården där man kan njuta av morgonsol, lummig grönska och fågelkvitter.
Till sist erbjuds ni ett badrum med moderna bekvämligheter som är fackmannamässigt renoverat 2015. Badrummet har grått klinkergolv med behaglig golvvärme och helkaklade väggar i stora vita kakelplattor. Inredningen består av wc, vit handfatskommod, spegel, handdukstork, dusch med glasdörrar samt tvättmaskin från Samsung (2015).

