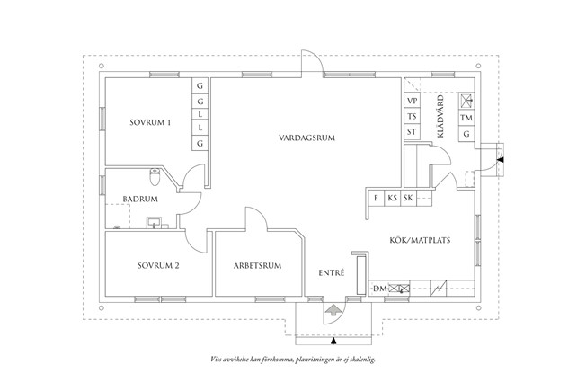
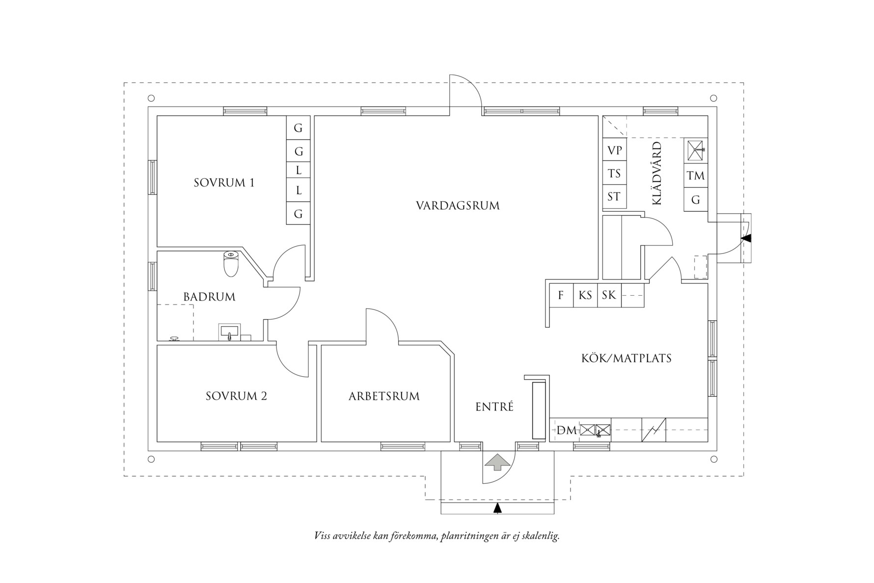
Bostaden disponeras enligt följande:
Innanför ytterhallen möts man av en stor möblerbar hall med praktiskt klinkergolv. Här får hela familjens ytterkläder plats. Från hallen kommer man rakt in i det öppna och härliga vardagsrummet.
Direkt till höger från hallen har ni ett trivsamt och mycket arbetsvänligt kök i harmoniska färger. Man har fina ljusinsläpp från stora fönsterpartier och utrymme för en matplats för ett stort sällskap. Köket har köksinredning i vitt med handtag och bänkskivor i ljust trä. Stänkskydd i vitt kakel bryts snyggt av med en blommönstrad tapet och golvet är klätt i en slittålig plastmatta i klinkerimitation. Den maskinella utrustningen består av spis, köksfläkt, ugn, diskmaskin, mikro samt side-by-side kyl och frys. Här samlas hela familjen för matlagning och umgänge.
Generösa sällskapsytor med vardagsrum och matsal i öppen planlösning. Golven kläs av originalparkett och väggarna kläs av en ljus tapet. Här har ni gott om plats för en stor soffgrupp med TV-möbel för filmkvällarna eller umgänge i goda vänners lag. Ni har dessutom plats för en stor matgrupp för de större middagsbjudningarna. Vardagsrummet har en braskamin som bidrar med värme och hög mysfaktor. Här når ni även altandörren ut till den soliga uteplatsen som nyttjas frekvent under vår och sommar.
Huset har tre sovrum, ett stort och två mindre. I det stora sovrummet ryms dubbelsäng och sängbord. Här finns även en snygg garderobsmöbel med totalt fyra stycken garderober, två på var sin sida och med hyllor i mitten. Väggarna är klädda i en vacker blå tapet vilket sägs vara en av de mest rofyllda färger man kan ha i ett sovrum. De mindre sovrummen har ljusgul respektive orange tapet och båda rymmer säng, sängbord och klädförvaring. Ett av sovrummen används idag som kontor, allt efter eget tycke och behov. Samtliga sovrum har fint parkettgolv.
Husets badrum är rymligt och har helkaklade väggar i svart och vitt samt ett vitt klinkergolv. Inredningen består av ett stort bubbelbadkar, wc, handfat samt ett väggfast spegelskåp ovanför. Ett fönster bidrar med dagsljus och ger vädringsmöjlighet.
Det finns även en separat tvättstuga med groventré. Utrustningen består av tvättmaskin, torktumlare, torkskåp, diskho med skåp samt hyllor för förvaring samt en frysbox. Även centraldammsugare är inkopplat.
På tomten finns flertalet uteplatser att nyttja och i trädgården finns ett växthus för den med gröna fingrar. Trädgården skapar en lummig oas med dess olika vegetation med berg, träd och gräsmatta. Friliggande garage med förråd.
Välkomna på visning!

