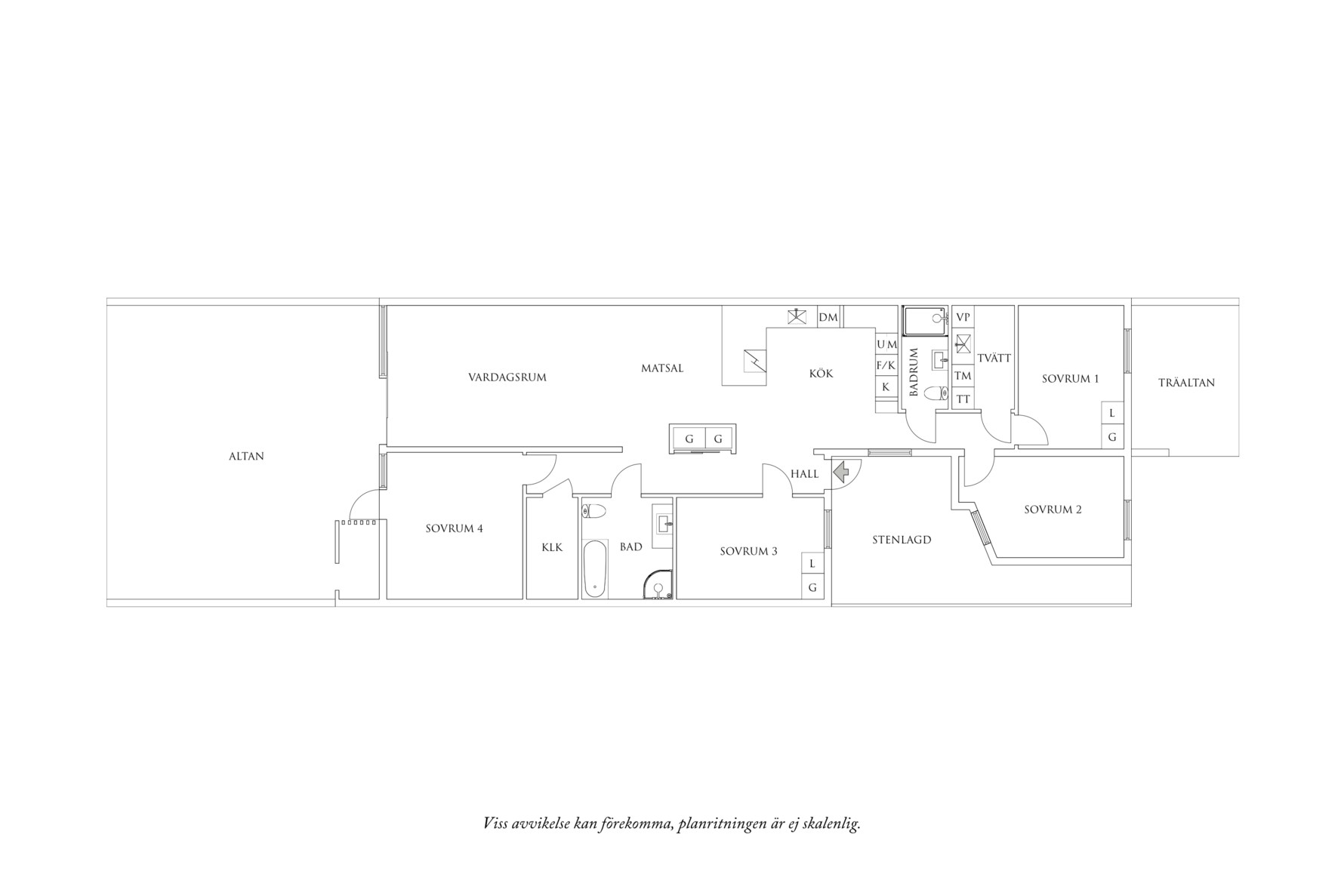
Bostaden disponeras enligt följande:
Innanför ytterdörren möts ni av en ljus hall med god förvaring för ytterkläder i garderober med skjutdörrar i spegelglas.
Det första man möts av är ett nyrenoverat kök i anslutning till det stora vardagsrummet. Köket har goda arbetsytor och köksinredningen går i vitt och bryts snyggt av med en mörkare bänkskiva och rostfria vitvaror. Den maskinella utrustningen består av induktionshäll, köksfläkt, diskmaskin, inbyggnadsugn i ergonomisk arbetshöjd samt side-by-side kyl och frys. Golvet kläs av en snygg parkett som är genomgående i både hall och vardagsrum vilket skapar en enhetlig känsla.
Vardagsrummet rymmer ett stort matbord med sex till åtta matplatser samt en soffgrupp med soffbord och tv-möbel för familjens filmkvällar. Här når ni även den underbara altanen som är insynsskyddad och bjuder på en vacker utsikt. Här spenderas sommardagarna och grillkvällarna med familj och vänner.
Det finns fyra smart placerade sovrum varav ett något större med en intilliggande klädkammare och separat utgång till altanen. Vill man inreda ett av sovrummen till gästrum eller kontor går det utmärkt.
Bostaden har två badrum varan ena renoverat 2018 och är utrustat med både badkar och dusch samt wc, handfat och spegel. Väggarna har vitt kakel och golvet kläs av ett mörkgrått klinkergolv. Det andra badrummet har dusch, wc, spegel, handfat och kläs av kakel och klinkergolv i vitt.
Ni har även en mindre altan och uteplats på framsidan att njuta av framför den bilfria innegården med lekplats. Perfekt för barfamiljen. Garage tillkommer fastigheten och ligger precis intill.
Varmt välkomna på visning!


